前沿拓展:
对于一个美食爱好者来说,天天下厨,强烈需要一款排烟能力一级棒的抽油烟机。毕竟经常下厨都是女同志,选择一款好的油烟机不仅可以清洁工作减少,而且能让下厨的心情都变得美美哒。觉得厨房油烟味太重,是因为你的油烟机没选好。
今天给你分享影响排烟效果的3大原因,自家户型适合哪种类型油烟机?有哪些好的品牌和产品推荐呢?让你告别油腻腻的厨房,从此过上舒服的生活。
一、科普:影响排烟效果的3大关键参数市面上常用的油烟机主要有两种:侧吸和欧式顶吸。中式油烟机或者集成灶等也有人选用,但是侧吸和欧式顶吸是市场的主流烟机款式。油烟机怎么选?其实购买的时候主要是要看这3大关键参数,选购的时候可以着重对比和了解。
一个好的油烟机的参数应该是风量大、噪音低、风压大才是好油烟机。
1、顶吸和侧吸哪个排烟效果好?
根据中国消费者协会是市场上的16台油烟机做的测试,得出结论:当厨房有油烟时,顶吸的排烟效果比侧吸好。
而其中欧式顶吸还可以分为浅罩型和深罩型,深罩型比浅罩型的集烟腔更大,拢烟效果更好,排油烟更彻底,可以根据自家厨房的条件选择。
但是侧吸的颜值高点,然后不会碰头,也是许多爱好侧吸的人首选。比如方太侧吸式油烟机的风魔方,排烟效果也不错。
2、风量选多少量排烟效果最合适?越大越好吗?
风量的大小从12m³/min→21m³/min不等,风量越大,会让油烟排放的速度越快,漏出来的油烟就少了。风量大的油烟机会很快速把油烟排干净。建议家庭选购15m³/min→18m³/min就足够家庭使用,选购的时候可以看商家标出的风量值大小。
3、风压选多少排烟效果最好?
风压值越大,油烟机的抗倒风能力越强,排烟效果越好。
选购的时候要看一下烟机的风压,特别是高楼和使用公共烟道的,建议选购风压达到280Pa,才能在做饭的高峰期不会被公共烟道的烟倒灌进来。选购的时候风量大,风压也大,可以参考一下。
二、选购抽油烟机要匹配你家户型和需求有些人说选油烟机还要考虑家里的户型还有需求?是的,这个很关键,因为不同的户型和厨房结构会影响油烟机选购类型。
1、户型匹配:
小户型或封闭式厨房:建议选购侧吸式抽油烟机,吸力风量在15m³/min上下足够使用。
开放式、半开放式、岛式厨房:建议选购顶吸式抽油烟机,吸力风量在17m³/min以上才能减少油烟。
2、需求匹配:
如果家里很少开火,不常做饭,只是偶尔煮个面,从颜值和价格上来考虑,可以购买吸力风量15m³/min就可以了。相反如果家里喜欢爆炒,即使是封闭式厨房,建议购买吸力风量在18m³/min以上才能尽快排烟。
三、安装和清洁没做好,多贵都不好用抽油烟机的正确安装方法:
抽油烟机的安装的好会让它发挥最大的功效,反之如果没有安装妥当,即使买的超贵,最后的使用效果大打折扣。
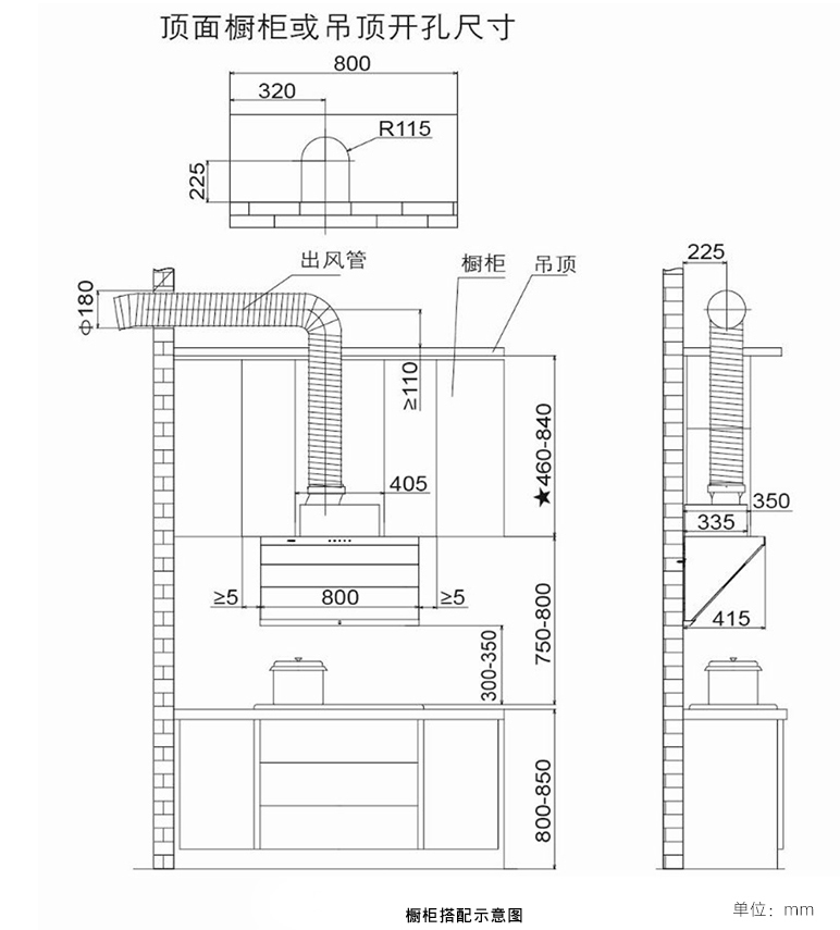
1、装烟机之前,墙上先要开一个直径18cm的烟道孔,不能太大或太小都会影响排烟效果。
2、油烟机的安装高度也有规定范围,油烟产生和上升规律,建议侧吸的油烟机安装高度在离台面大约35-40cm最合适,顶吸的油烟机安装高度在离台面65-75cm上方最合适,避免安装太低影响炒菜,太高导致油烟机抽风效果大打折扣。
3、安装位置尽量选择靠近公共烟道,减少油烟传送的距离,使得排烟速度加快,风道少拐弯。
4、止逆阀一定要购买最好的,防止公共烟道的烟倒灌。
抽油烟机的正确清洗方法:
不要相信自动清洗或免拆洗的噱头,清洗油烟机还是有必要的,特别是用了几年之后发现烟机不好用,那是因为里面脏了。里面会有油污在机器里面会造成磨损,排烟能力和寿命降低。
1、如果购买了没有带自动清洗或免拆洗,建议定期半年拆卸下来清洗。
2、如果是自带自动清洗功能或免拆洗,建议一年左右请专业的品牌售后上门清洁,比路边的游击队靠谱,怕游击队拆卸时弄坏油烟机。
四、抽油烟机的5大品牌和产品推荐市面上的油烟机知名品牌主要是方太、老板、帅康、华帝、美的、樱花、万家乐、火星人、帅丰、西门子。其中帅康和火星人的集成灶相对出名,今天主要给你介绍方太、老板、华帝、美的、西门子这5个品牌的产品推荐哦。
方太电器:创建于1996年,属于国内的一线品牌,口碑和质量不错,价格也较贵。在技术上一直领先行业内,拥有8000平米先进的厨电实验室。
产品推荐:方太CXW-228-JQ26TA侧吸式抽油烟机
亮点推荐:近吸直排不跑烟,风量20m³/min吸力够,油烟不过拐弯,控烟范围大。
老板电器:公司总部在杭州,有40年的历史,专业生产吸油烟机、燃气灶、消毒柜等厨房电器、生活小家电产品。主要系列有尊朗系列、跨界系列、T型系列、巨幕拢吸系列、iCook系列等,品质和售后服务都不错。
产品推荐:Robam/老板67A7+36B0/36G3/58B1/58G6/37B0/37G1顶吸式烟灶套餐
亮点推荐:51分贝噪音小,风量19m³/min,一级能效省电,内置红外线感应,挥手即可感应爆炒。
华帝电器:成立于1992年,在国内华帝的知名度不错,产品质量也不错,是北京2008年奥运会燃气具独家供应商。
产品推荐:Vatti/华帝 CXW-248-i11090 天镜蒸水洗家用侧吸式抽油烟机
亮点推荐:专利滑屏幕,风量21m³/min,蒸水洗吸烟更彻底。
美的电器:1968年成立于中国顺德,美的是中国龙头企业,产品覆盖范围多,知名度不错,油烟机的质量和性价比不错。
产品推荐:美的T39抽油烟机自动清洗
亮点推荐:自动清洗,风量18m³/min,体积小不碰头,性价比高。
西门子电器:创立于1847年,是全球电子电气工程领域的领先企业。西门子的产品和创新在家电行业来说算是不错,油烟机也是许多人的选择。
产品推荐:SIEMENS/西门子 47SA951+231欧式自清洁油烟机燃气灶套餐烟灶套装
亮点推荐:净烟烹饪,爆炒无忧,风量18m³/min,免拆洗可以自动清洁。
选购好的油烟机之后,用个十年八年还是效果依旧好,特别家电类的产品,更加在装修上要下功夫。如果你家准备选购油烟机,欢迎收藏此文哦。
拓展知识:
标题:绍兴帅康油烟机维修服务(南京帅康油烟机维修服务电话)
地址:http://www.cdaudi4s.com/kongdiao/weixiuzixun/56352.html


